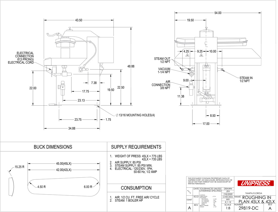
42LX Roughing-In Drawing