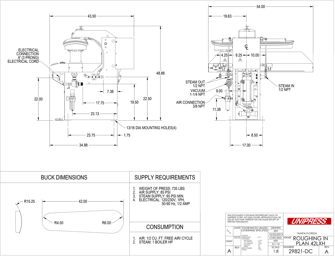
42LXH Roughing-In Drawing