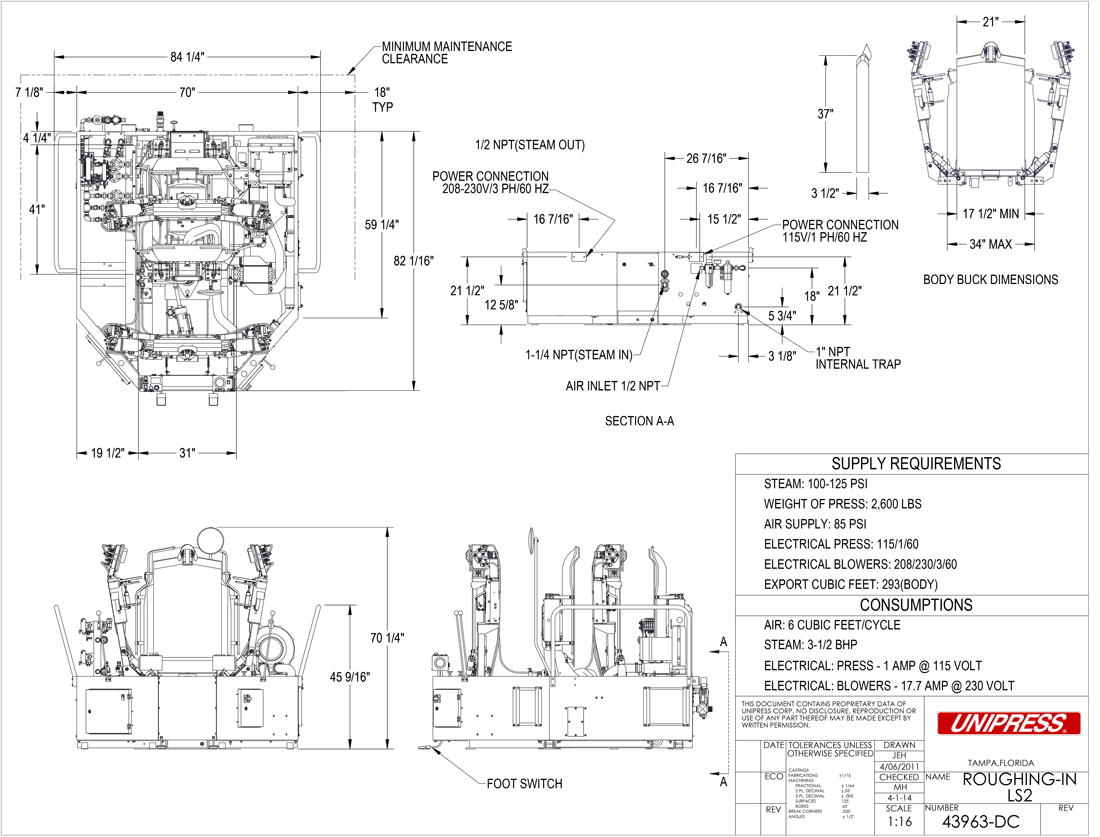
LS2 Roughing-In Drawing